top of page

Fabrication Drawings

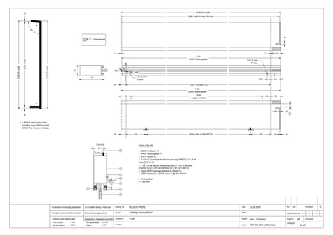
Typical Mullion and Transom Preparation Drawings

Facade Systems:

  • Schüco FW50+

  • Schüco FW50+ FR60

  • Schüco FW50+ AOS

  • Aluprof MB-SR50N

bottom of page